
Smugglers Run
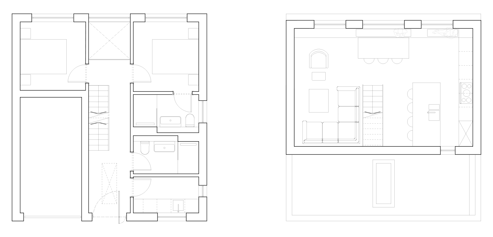
Smuggler’s Run & The Old Boat Yard are located off Torridge Road, Appledore. Both buildings have a rich maritime history, positioned next to one another but now in different ownership.
Project Location: Appledore, North Devon
Project Size: 170m2
Service: Concept design to completion
Completion: To be confirmed
Both buildings current existed most recently as garages/storage structures, however due to deterioration and disuse, the clients sought to redevelop the site(s) into an annexe and single dwelling respectively. The tight constraints shaped both buildings and the site falls away from the highway, realising a change in level which enables 3 floors to be achieved.



