
Pitt Hill
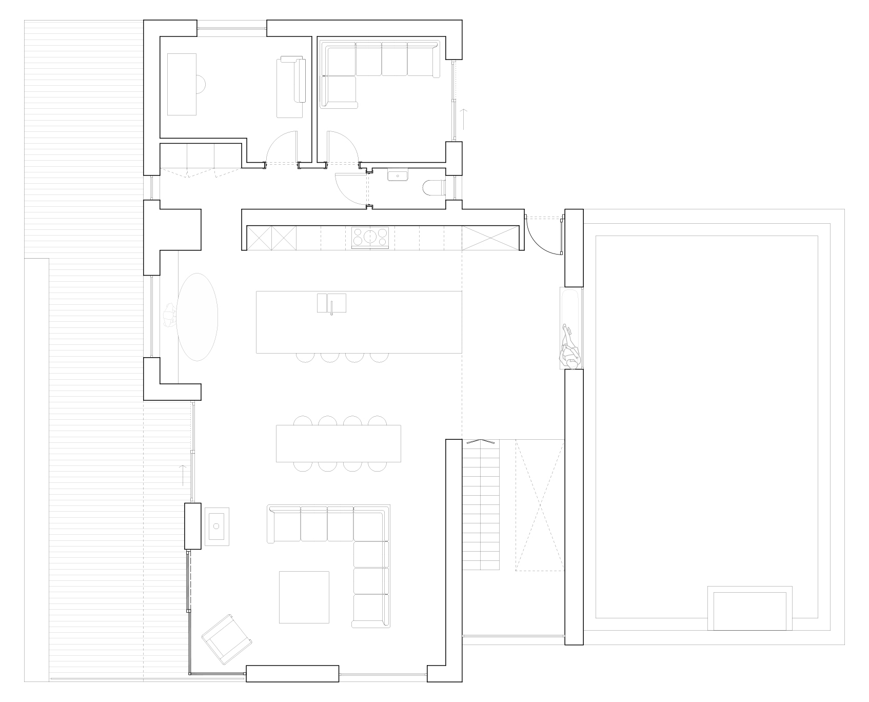
Pitt Hill is a scheme of 2 dwellings situated on greenfield land in Appledore, North Devon. The aim from the outset was to explore a modern interpretation of the rural vernacular to enable the dwellings to sit well within the semi-rural/edge of village setting. Given a lack of nearby context, the appearance had nothing to reference or reflect, hence seeking wider typology references.
Project Location: Appledore, North Devon
Project Size: 310m2
Service: Design to completion
Completion: Est Feb 2024
The two dwelling, one for each generation of the same family, share similar characteristics, yet are still tailored to each users specific needs and desires. The pair answer to one another without being a duplication, embedded into the landscape giving a low, subtle appearance from wider distance views.
“The dark charred timber applied to one of the two properties, with its corrugated metal roof aims to reflect the materiality of agricultural buildings, with a primary gabled volume. The entire mass has been physically broken down into smaller, more visually independent forms to control the overall scale and perceived mass of the dwelling.”





