
Highridge Barn
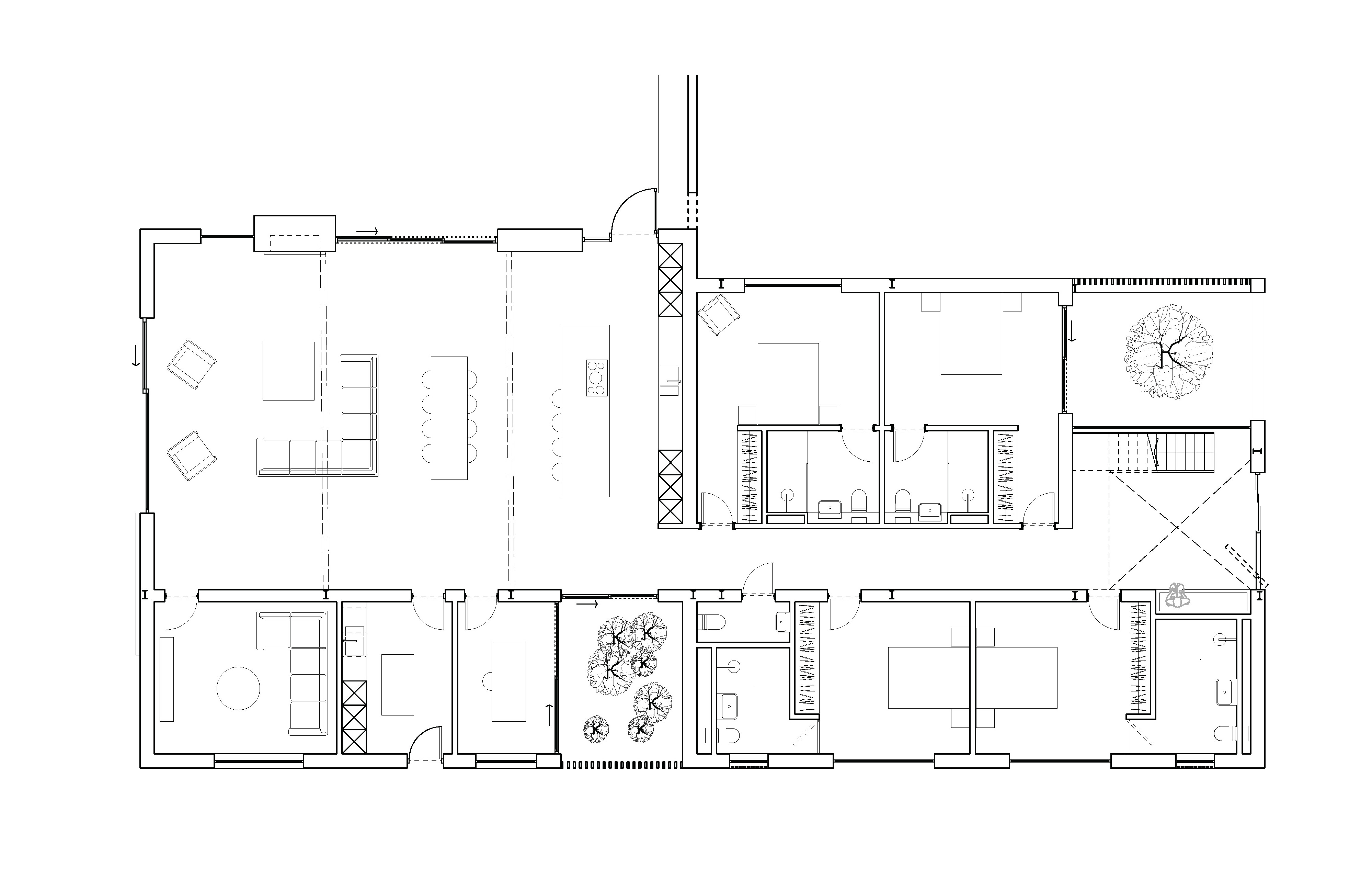
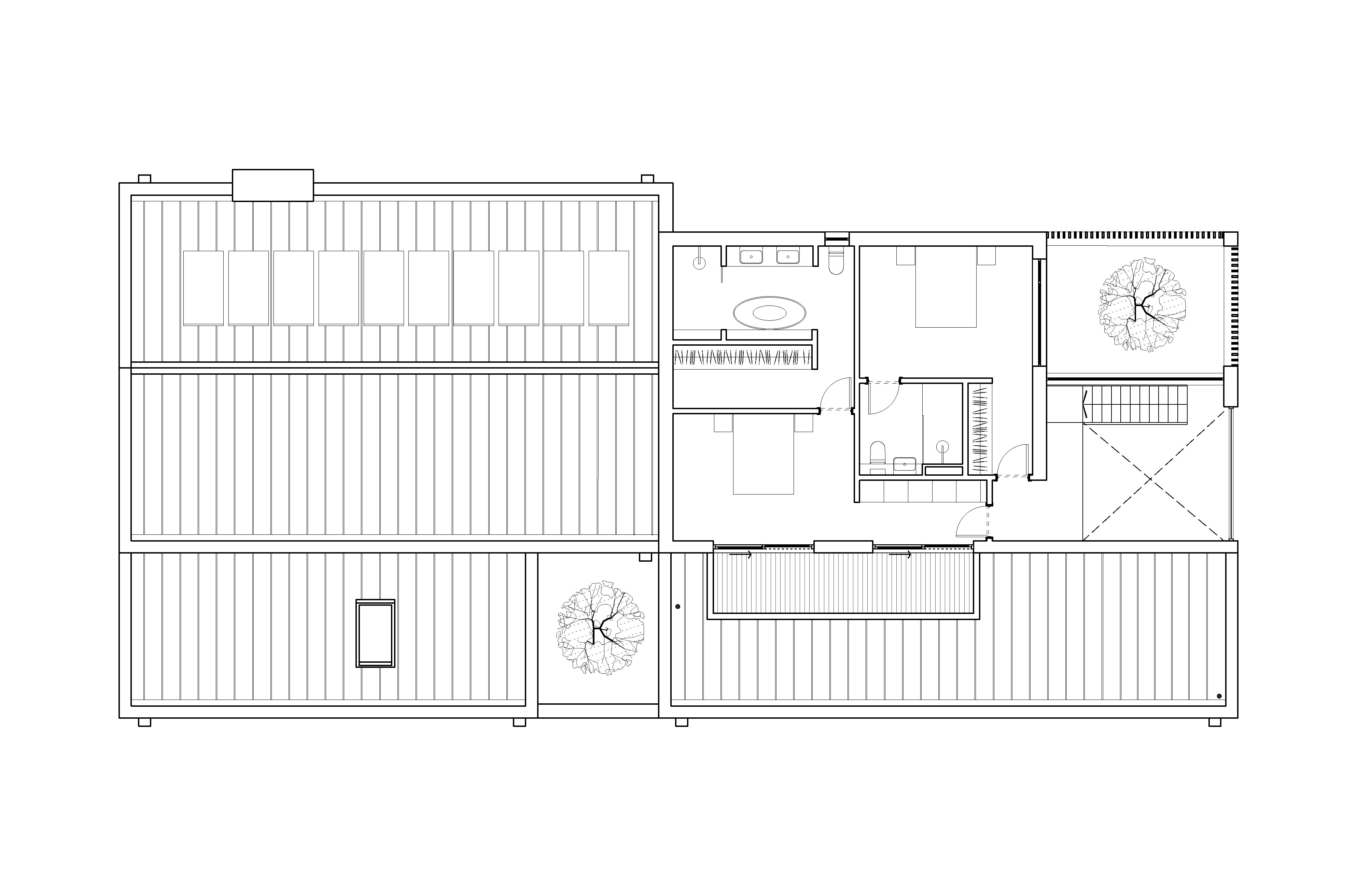
Located on top of the ridge, south of Woolacombe Beach, this redundant barn offered a unique opportunity for conversion into a dwelling. The barn turns it back on the neighbouring (host) property, and benefits from far reaching northern and eastern views over the rolling countryside, with the added benefit of privacy from the adjaccent property. The barn adheres to the existing traditional form, broken into two distinct volumes but treats each volume differently in terms of both use and materiality.
Project Location: Woolacombe, North Devon
Project Size: 362m2
Service: Planning - Technical Design
Completion: 2024
In order to get light into all spaces without compromising on privacy, a number of courtyards have been created; inset into the existing footprint creating pockets of light and introducing a natural feature, such as planting which further enhances the quality of the space. These courtyards are a solution to enhancing access to natural light and views which may have been otherwise absent with such a deep plan.
The existing structure is compromised of two distinct volumes. These have been treated different externally to help visually separate and break down the volume to prevent it appearing too large, and internally, the two volumes occupy different uses. One volume sleeping accommodation, the other living. This visual and physical separation creates a threshold between public (social) and private (more intimate) spaces internally.








