
Carrick
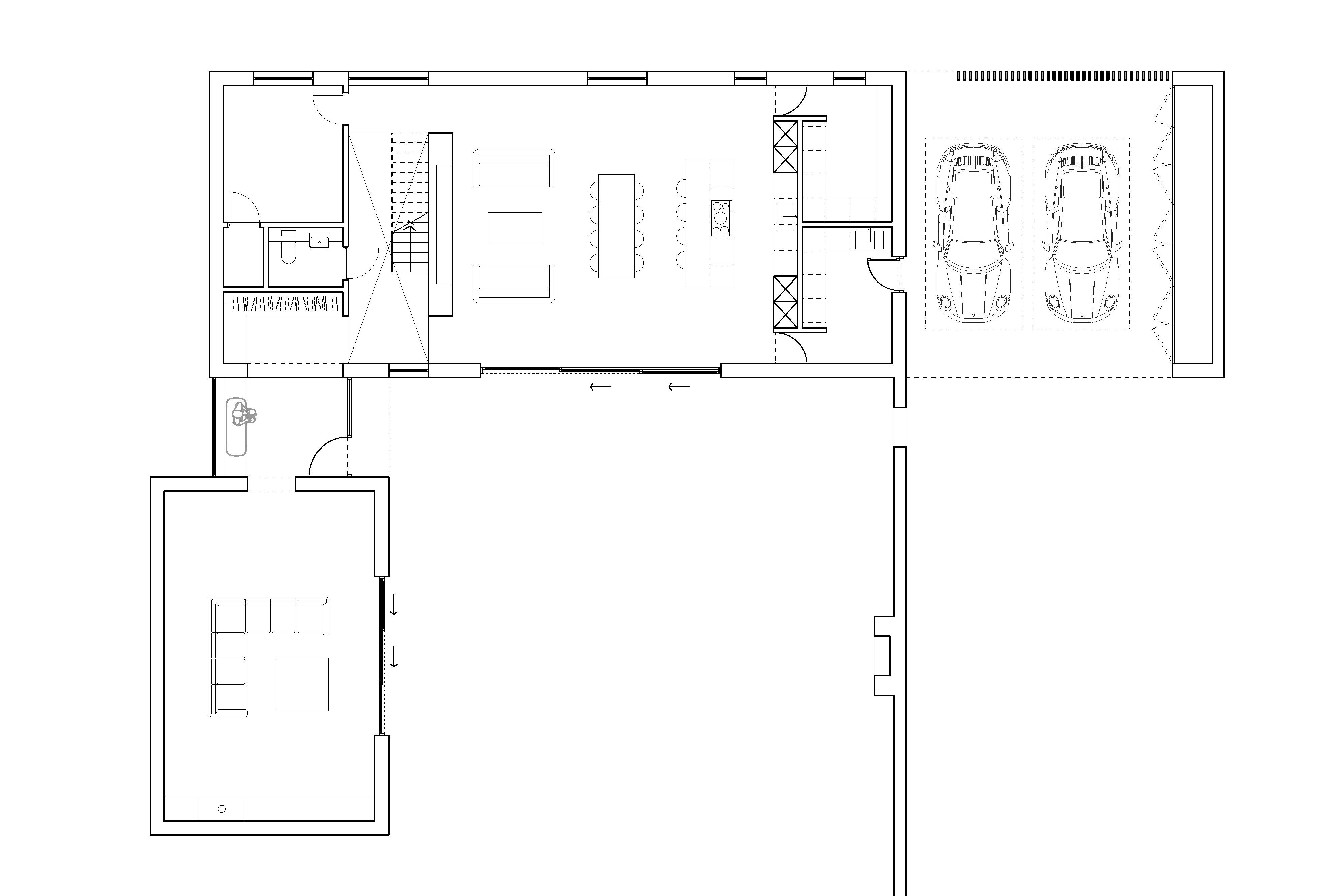
This scheme for 2 new dwellings (following the approved at outline stage) takes influence from nearby farm/courtyard typologies for both aesthetic and privacy purposes. Each unit focuses inwards into it's own wall courtyard garden to prevent overlooking, creating a screened, protected garden area which becomes an extension of the living areas. The primary volumes respond to the contours of the site, and the linear pitched roof forms reflect the linearity of barns common of rural locations.
Project Location: Tawstock, North Devon
Project Size: 200m2
Service: Planning
Completion: Unknown
The stone wall garden enclosing the outdoor areas continue to form the ground floor facade, with a pre-weathered timber above to aid the building in settling into it's rural surroundings. The standing seam zinc roof is also a reference back to agricultural buildings, suggesting a palette of natural rural materials synonymous with rural settlements.
The primary two storey volume is offset by a single storey entrance lobby (link) and formal sitting room perpendicular to the main house. This further encloses the garden area and creates a strong relationship between inside and out from all ground floor social spaces to enhance the connectivity to and from the garden.






